Goldhouse Dan Satılık Yakacıkta Doğayla İç İçe Müstakil Havuzlu Villa
| 12.200.000 TL | |
| Fethiye / Yakacık | |
| İlan No | : 21003 |
| Emlak Durum | : Satılık |
| Emlak Tipi | : Villa |
| Brüt m2 | : 180 m2 |
| Net m2 | : 160 m2 |
| Oda Sayısı | : 4+1 |
| Banyo Sayısı | : 3 |
| Balkon | : Var |
| Bina Yaşı | : 0 |
| Kat Sayısı | : 2 |
| Kullanım Durumu | : Boş |
| Isıtma | : Klima |
| Evcil Hayvan İzni | : VAR |
| Otopark | : Var |
| Krediye Uygunluk | : Uygun |
| Konut Şekli | : Bahçe Dubleksi |
| Eşyalı | : Hayır |
| Site İçi | : Hayır |
| Yapı Durumu | : Sıfır |
0252 611 34 34
DETAYLI AÇIKLAMA
FETHİYE YAKACIK’TA DOĞAYLA İÇ İÇE MÜSTAKİL HAVUZLU VİLLA!
Hayallerinizdeki yaşam alanına adım atın!
Doğanın huzuru içinde, modern mimarisiyle öne çıkan bu özel villa, hem konforlu bir yaşam hem de değerli bir yatırım fırsatı sunuyor.
- 500 m² arsa üzerinde 160 m² kapalı kullanım alanı
- 4 yatak odası, 1 geniş salon, açık mutfak
- Müstakil yüzme havuzu ve geniş veranda
- Şömineli, havuz manzaralı ferah salon
- Ebeveyn banyolu ve giyinme odalı yatak odası
- Tüm odalarda balkon
- Giriş katta misafir odası ve banyo
- Modern ve fonksiyonel iç mekân tasarımı
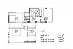
Kat Planı:
Giriş Kat: Havuz manzaralı şömineli salon, açık mutfak, 1 yatak odası, ortak banyo/WC ve verandadan havuza doğrudan erişim.
Üst Kat: 3 yatak odası (1 ebeveyn banyolu + giyinme odalı), 1 ortak banyo/WC, tüm odalar balkonlu.
- Fethiye Merkez: 22 km
- Çalış Plajı: 25 km
- Dalaman Havalimanı: 65 km
Sessiz, sakin ve güvenli bir bölgede yer alan bu villa; doğayla iç içe, huzurlu bir yaşam sürmek isteyenler için mükemmel bir seçenek.
Hem kalıcı ikamet hem de yatırım amacıyla değerlendirilebilir.
Fethiye Yakacık’ta sizi bekleyen bu özel fırsatı kaçırmayın!
Detaylı Bilgi ve Randevu İçin:
AYTEN TOPALOĞLU – 0542 100 34 08
___________________________________________________________
Ticari ve Konut Alım-Satım-Kiralama-Kiraya verme-Ekspertiz ve Diğer Talepleriniz için 7/24 Firmamızdan Destek Alabilirsiniz.
0 545 616 11 11
TC MUĞLA VALİLİĞİ TİCARET İL MÜDÜRLÜĞÜ TAŞINMAZ TİCARETİ YETKİ BELGELİDİR
İşletme Adı: GHouse Gayrimenkul Danışmanlık
Yetki Belgesi Numarası: 480140
